︎ HOME
Integral Theory - Apartment Design
CLICK HERE FOR PDF VERSION
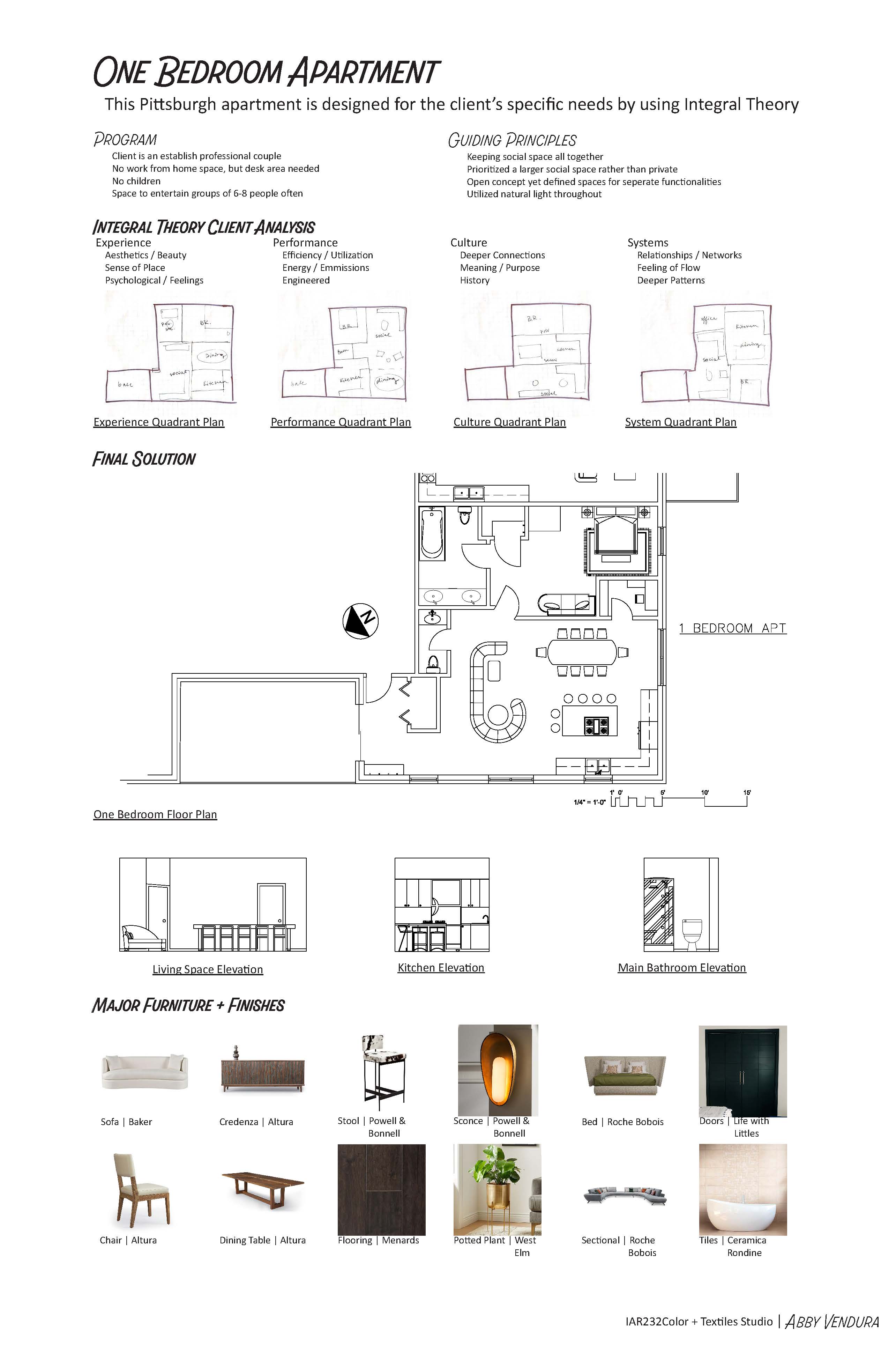
This project used Integral Theory to design apartments taking into account the client’s Experience, the surrounding area’s Culture, the flow of Systems, and the efficency of Performance.